Aller à :

  • Aller à la recherche
  • Aller au menu principal
  • Aller au contenu
0
  • Accueil
  • A vendre
  • Biens vendus
  • Estimation
  • Notre agence
  • Notre équipe
  • Contact
0
VotreRecherche
Dans un rayon de
BUDGET MAX
entre et €
Min €
Max €
  1. Accueil
  2. Vente
  3. Ain
  4. Arbent
  5. Immeuble
  6. T
  7. Lot de 2 maisons fort potentiel arbent
Nouveauté
Réf : 179
Immeuble
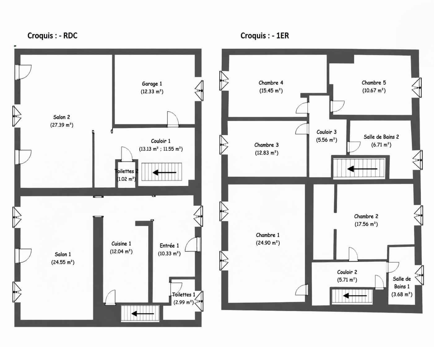
LOT DE 2 MAISONS – FORT POTENTIEL – ARBENT
Nombre de pièces 7
Nombre de chambres 5
Nombre de salles de bain 1
Salle d'eau 1
TRAD_MELTEM_Superficieterrainenm² 213 m²
Vidéo
Le bien en vidéo
SpotVideo
289 000 €

LOT DE 2 MAISONS – FORT POTENTIEL – ARBENT Arbent (01100)

Votre agence LC IMMOBILIER vous propose à la vente, sur la commune d’Arbent, un ensemble immobilier rare, idéalement situé à proximité immédiate des commodités et des axes autoroutiers, tout en bénéficiant d’un environnement calme. Ce lot de deux maisons développe aujourd’hui environ 200 m² habitables, auxquels s’ajoutent un grenier de plus de 100 m² avec une belle hauteur sous plafond entièrement aménageable, ainsi qu’un sous-sol complet. Une terrasse d’environ 60 m² complète l’ensemble, avec la possibilité de la diviser selon les besoins. Actuellement organisé en deux parties distinctes déjà habitables, le bien offre une grande souplesse d’exploitation. Il peut être conservé en l’état, réuni en une seule habitation, ou repensé afin de créer plusieurs logements indépendants. La configuration permet d’envisager facilement la création de plusieurs lots, avec un potentiel supplémentaire dans les combles. L’ensemble est en bon état général. Les menuiseries sont en double vitrage, l’isolation est en place et les systèmes de chauffage sont récents, avec une chaudière gaz d’un côté et une pompe à chaleur de l’autre. Les travaux à prévoir restent principalement liés à l’aménagement et à l’optimisation des volumes. Ce bien s’adresse aussi bien à un investisseur souhaitant développer un immeuble de rapport, qu’à un projet familial ou à un acquéreur en quête d’un bien évolutif avec valorisation à la clé. Pour plus d'informations n'hésitez pas à contacter votre agence LC IMMOBILIER.

  • Général
  • Détails +
  • Copropriété
  • Financier
  • DPE
  • Quartier
Caractérisque Valeurs
Code postal 01100
Surface habitable (m²) 200 m²
surface terrain 213 m²
Surface loi Carrez (m²) 247,09 m²
Nombre de chambre(s) 5
Nombre de pièces 7
Nombre de niveaux 3
Caractérisque Valeurs
Nb de salle de bains 1
Nb de salle d'eau 1
Mode de chauffage Gaz, Pompe à chaleur
Type de chauffage TRAD_TYPE_CHAUFF_CHAUDIERE, Radiateur
Format de chauffage Individuel, Individuel
Terrasse OUI
Sous/sol AVEC
Murs mitoyens 2
Cave OUI
Année de construction 1860
Caractérisque Valeurs
Copropriété NON
Caractérisque Valeurs
Prix de vente honoraires TTC inclus 289 000 €
DPE GES
  • Commerces et santé
  • Loisirs
  • Ecoles
  • Transports
  • Pratique
Cette offre
vous intéresse

* champs obligatoires

Les informations recueillies sur ce formulaire sont enregistrées dans un fichier informatisé par La Boite Immo agissant comme Sous-traitant du traitement pour la gestion de la clientèle/prospects de l'Agence / du Réseau qui reste Responsable du Traitement de vos Données personnelles. La base légale du traitement repose sur l'intérêt légitime de l'Agence / du Réseau. Elles sont conservées jusqu'à demande de suppression et sont destinées à l'Agence / au Réseau. Conformément à la loi « informatique et libertés », vous disposez des droits d’accès, de rectification, d’effacement, d’opposition, de limitation et de portabilité de vos données. Vous pouvez retirer votre consentement à tout moment en contactant directement l’Agence / Le Réseau. Consultez le site https://cnil.fr/fr pour plus d’informations sur vos droits. Si vous estimez, après avoir contacté l'Agence / le Réseau, que vos droits « Informatique et Libertés » ne sont pas respectés, vous pouvez adresser une réclamation à la CNIL. Nous vous informons de l’existence de la liste d'opposition au démarchage téléphonique « Bloctel », sur laquelle vous pouvez vous inscrire ici : https://www.bloctel.gouv.fr Dans le cadre de la protection des Données personnelles, nous vous invitons à ne pas inscrire de Données sensibles dans le champ de saisie libre.
Ce site est protégé par reCAPTCHA, les Politiques de Confidentialité et les Conditions d'Utilisation de Google s'appliquent.

Partager le bien
Nos outils
Imprimer Imprimer
Calculatrice financière

* Champ obligatoire

Partager l'annonce

* champs obligatoires

Les informations recueillies sur ce formulaire sont enregistrées dans un fichier informatisé par La Boite Immo agissant comme Sous-traitant du traitement pour la gestion de la clientèle/prospects de l'Agence / du Réseau qui reste Responsable du Traitement de vos Données personnelles. La base légale du traitement repose sur l'intérêt légitime de l'Agence / du Réseau. Elles sont conservées jusqu'à demande de suppression et sont destinées à l'Agence / au Réseau. Conformément à la loi « informatique et libertés », vous disposez des droits d’accès, de rectification, d’effacement, d’opposition, de limitation et de portabilité de vos données. Vous pouvez retirer votre consentement à tout moment en contactant directement l’Agence / Le Réseau. Consultez le site https://cnil.fr/fr pour plus d’informations sur vos droits. Si vous estimez, après avoir contacté l'Agence / le Réseau, que vos droits « Informatique et Libertés » ne sont pas respectés, vous pouvez adresser une réclamation à la CNIL. Nous vous informons de l’existence de la liste d'opposition au démarchage téléphonique « Bloctel », sur laquelle vous pouvez vous inscrire ici : https://www.bloctel.gouv.fr Dans le cadre de la protection des Données personnelles, nous vous invitons à ne pas inscrire de Données sensibles dans le champ de saisie libre.
Ce site est protégé par reCAPTCHA, les Politiques de Confidentialité et les Conditions d'Utilisation de Google s'appliquent.

Détail des diagnostics énergétiques
DPE GES

Montant estimé des dépenses annuelles d'énergie pour un usage standard est compris entre 1 650 € et 2 290 € . Prix moyens des énergies indexés sur les années 2021, 2022 et 2023 (abonnements compris).

Partager avec vos proches

Facebook Facebook
Messenger Messenger
Twitter Twitter
WhatsApp WhatsApp
LinkedIn LinkedIn
Copier le lien Copier le lien
Contacter
l'agence

Remplissez ce formulaire, nous ferons de notre mieux pour vous répondre dans les meilleurs délais.

LC IMMOBILIER
09 88 50 11 84
E-mail contact@lc-immobilier.fr

130 Rue Pierre Corneille 69003 Lyon

TRAD_MELTEM_voscoordonnees
TRAD_MELTEM_voredemande
Règlementation

* Champ obligatoire

Les informations recueillies sur ce formulaire sont enregistrées dans un fichier informatisé par La Boite Immo agissant comme Sous-traitant du traitement pour la gestion de la clientèle/prospects de l'Agence / du Réseau qui reste Responsable du Traitement de vos Données personnelles. La base légale du traitement repose sur l'intérêt légitime de l'Agence / du Réseau. Elles sont conservées jusqu'à demande de suppression et sont destinées à l'Agence / au Réseau. Conformément à la loi « informatique et libertés », vous disposez des droits d’accès, de rectification, d’effacement, d’opposition, de limitation et de portabilité de vos données. Vous pouvez retirer votre consentement à tout moment en contactant directement l’Agence / Le Réseau. Consultez le site https://cnil.fr/fr pour plus d’informations sur vos droits. Si vous estimez, après avoir contacté l'Agence / le Réseau, que vos droits « Informatique et Libertés » ne sont pas respectés, vous pouvez adresser une réclamation à la CNIL. Nous vous informons de l’existence de la liste d'opposition au démarchage téléphonique « Bloctel », sur laquelle vous pouvez vous inscrire ici : https://www.bloctel.gouv.fr Dans le cadre de la protection des Données personnelles, nous vous invitons à ne pas inscrire de Données sensibles dans le champ de saisie libre.
Ce site est protégé par reCAPTCHA, les Politiques de Confidentialité et les Conditions d'Utilisation de Google s'appliquent.

Se connecter
Espace propriétaire
Adhérents

© 2026 | Tous droits réservés | Traduction powered by Google |

  • Nos honoraires
  • Plan du site
  • Mentions légales
  • Admin
  • Nos liens
  • Politique RGPD

Comme beaucoup, notre site utilise les cookies

On aimerait vous accompagner pendant votre visite. En poursuivant, vous acceptez l'utilisation des cookies par ce site, afin de vous proposer des contenus adaptés et réaliser des statistiques !

Paramétrer

Cookies fonctionnelsCes cookies sont indispensables à la navigation sur le site, pour vous garantir un fonctionnement optimal. Ils ne peuvent donc pas être désactivés.

Statistiques de visitesPour améliorer votre expérience, on a besoin de savoir ce qui vous intéresse !
Les données récoltées sont anonymisées.

?

Google Analytics

En savoir plus